Overview

This week's assignment was to make something big using the CNC router. I decided to create decorative arch panels for a room I'm designing in my mother's house in Mysore, India.

Family Background in Wood: My family has been in the wood business for generations. My grandfather started plywood companies in and around Mysore, India in the 1950s. Despite having only a 10th-grade education, his entrepreneurial spirit led him to partner with a couple of Swedish partners to establish a plywood manufacturing operation. He exported rosewood to Germany and Italy during their post-war rebuilding period, and his business travels throughout Europe in the 1950s and 60s exposed him to international design trends which we saw in his art-deco inspired rosewood furniture at home.

The Project

I'm working on a bedroom design that uses old hand-carved wooden pillars and a 150-year-old door. I needed to create arch panels to go on top of the pillars — about 4 feet deep and 19 feet across the room. The panels needed to match the traditional Indian aesthetic but had to be fabricated quickly and precisely.

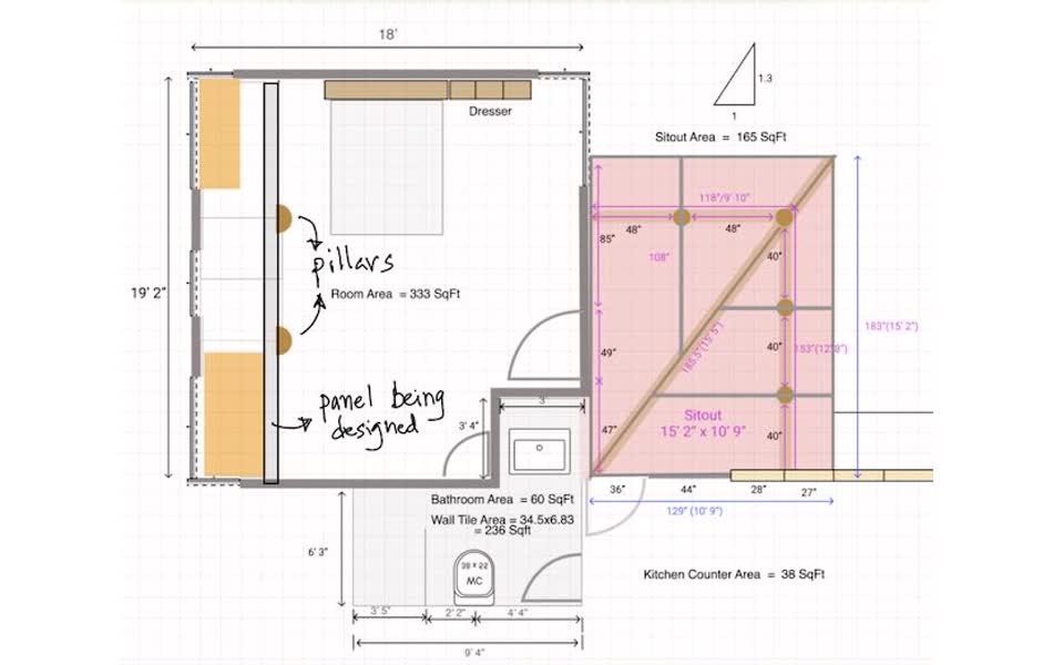
Bedroom floor plan
Bedroom plan showing the layout with carved pillars and arch panel design
Actual bedroom showing arch and pillar design implementation
The actual bedroom where the arch and pillar design is being implemented
Bedroom showing design and location of arches for CNC project
Design and location of the arches being designed for this CNC project

For this assignment, I created a scaled prototype that I can take back to India in my suitcase. This prototype serves as a design template for the full-sized CNC cutting I'll do in Mysore. The final pieces will be cut in much thicker wood or MDF with teak frames around them to integrate with the old teak pillars.

The Existing Elements

Antique carved teak wood pillar
Carved Teak Pillars: Hand-carved teak pillars salvaged from an old demolished house in Mysore. Probably over 100 years old.
Sitting area with 150-year-old carved wooden door
150-Year-Old Door: The sitting area (sitout) outside the bedroom features this intricately carved door.

Design Requirements

Front elevation drawing
Front elevation sketch — pillars shown as brown semi-circles, new arch panels marked as red rectangles

The pillared enclosure needed to be about 4 feet deep and 19 feet wide across the room. The carved pillars would be the vertical supports, and the arch panels would go on top to create the decorative portion.

Design Constraints

  • Panels need to span several feet while staying structurally sound
  • Material comes in standard thicknesses — had to work with what's available
  • CNC router bit size limits what shapes you can cut (no sharp internal corners)
  • Had to match the traditional Indian aesthetic but with a geometric, modern approach
  • Panels would be mounted overhead, so weight was a consideration

CAD Design in Fusion 360

I designed the arch panels in Fusion 360 using parametric modeling. The pattern is inspired by traditional Indian jali (lattice screens) and torana (gateway arches), but simplified into geometric shapes that work well for CNC cutting.

The design has:

  • Repeating arched motifs for visual rhythm
  • Cutouts to reduce weight but keep it structurally sound
  • Clean geometric lines that contrast with the hand-carved pillars
  • Built-in connection geometry for assembly
Important design rule for CNC: All internal corners need to have a radius at least as large as your router bit. You can't cut sharp internal corners with a round spinning tool — it's physically impossible. So I made sure all internal corners had proper fillets.
Fusion 360 CAD model
Fusion 360 design with repeating arch pattern

CNC Fabrication

Material Selection

Chris Dewart gave me pine wood which was much nicer to cut than the OSF board that was the standard issue at class. Pine cuts cleanly, has better surface finish, and the warm tone looks good with the teak pillars. Solid wood also has better structural integrity than plywood for this application.

At the Architecture Lab

I did the cutting at MIT's Architecture Lab using their large-format CNC router. These machines can handle full sheets and cut several inches deep — perfect for furniture-scale pieces.

Acknowledgments: I'd like to thank Gert Duvenhage from the Arch Workshop (3-402) who took my Fusion drawings and cleaned them up for CNC routing. Also, huge thanks to Chris Dewart at the Arch Lab (near the old MIT Museum) who is supremely knowledgeable with CNC machines — and all woodworking machines in general. Chris was super helpful in creating the toolpath file. Several of the toolpaths for the jali design pattern had to be reversed since the bit rotating into the wood would have chipped the edges of the thin pine ply I was using.

Working at the Architecture Lab CNC machine
Setting up the CNC cut at the Architecture Lab

Cutting Process

The toolpath used:

  • Roughing passes: Removed bulk material quickly with a larger bit
  • Finishing passes: Smaller bit and slower feed for clean edges
  • Tabs: Small tabs held the panel in place until the cut finished
  • Dust collection: Pine makes a lot of sawdust, so good dust collection was important

The cut took about 45 minutes. Safety glasses and hearing protection required since the spindle spins at thousands of RPM.

CNC milling the arch panel at the Architecture Lab

Results

Finished Panel

The CNC cut came out clean with good edge quality. The precision is exactly what you'd expect from CNC — consistent spacing, smooth curves, and repeatable if I need to make more panels.

Note: This is a scaled prototype made from pine that I can carry back to India. The actual full-sized panels will be fabricated in Mysore using thicker wood or MDF (likely 1-2 inches thick instead of the pine board thickness) with teak frames integrated around the edges to match the antique teak pillars.

Completed CNC-cut pine arch panel prototype
Finished prototype panel in pine — demonstrates the pattern and serves as a fabrication template
Close-up of the arch pattern
Arch Detail: Clean edges and smooth surface finish. The curves are smooth and need only minimal sanding.
Joint connection detail
Joint Detail: Connection geometry built into the panel design rather than using external hardware.

Prototype with Pillars

Here's how the prototype arch panel looks positioned with the antique carved teak pillars. This gives a sense of how the final full-sized pieces will integrate with the architectural elements:

Prototype CNC-cut arch panel shown with antique carved pillars
Prototype panel positioned with the carved pillars — demonstrating the design intent

The geometric precision of the CNC-cut pattern contrasts nicely with the organic hand-carved pillars. The cutouts keep it visually light while the arch forms reference traditional Indian architecture. The final versions will be scaled up and cut in thicker material with teak frames to properly integrate with the pillars.

Reflections and Lessons Learned

Design for CNC Manufacturing

This project reinforced several key principles for designing parts intended for CNC fabrication:

  • Tool radius matters: Every internal corner must accommodate the router bit radius — embrace this constraint rather than fighting it
  • Material thickness drives joinery: Design with your actual material dimensions, not nominal sizes
  • Minimize tool changes: Keeping the entire cut to a single bit size reduced setup time and potential errors
  • Consider grain direction: Wood grain affects both structural strength and surface finish — orient the pattern accordingly
  • Fixturing strategy: Plan how the workpiece will be held during cutting to avoid vibration and ensure safety

Challenges

  • Material warping: Solid wood can warp during and after cutting due to internal stresses being released — proper material conditioning and prompt installation helped minimize this
  • Dust management: Pine produces copious sawdust that can obscure the cutting area and affect cut quality — constant dust collection was essential
  • Feed rate optimization: Balancing cutting speed with surface finish quality required several test cuts to dial in optimal parameters
  • Assembly precision: Even small dimensional errors are magnified at architectural scale — careful measurement and test fitting were crucial

Conclusion and Next Steps

This was my first time working at architectural scale with CNC. The prototype panel came out well and successfully demonstrates the design concept. The pattern works visually with the antique carved pillars, and the jali cutouts provide the traditional aesthetic I was looking for.

Next steps: I'll take this prototype back to Mysore and use it as a template for the full-sized fabrication. The actual panels will be CNC-cut in thicker wood or MDF (1-2 inches thick), then fitted with teak frames to integrate seamlessly with the century-old teak pillars. The project connects my family's woodworking background with modern digital fabrication — precision and repeatability of CNC with traditional Indian architectural elements.

Personal Reflection: My grandfather perhaps never saw a CNC router. He would have marveled at the precision and speed with which the machine cut these panels. But I think he would have recognized the underlying principles — understanding your material, respecting the tools, designing with purpose, and taking pride in well-executed work. Those values are the same at any particular time or technology.

Files and Resources

  • Fusion 360 design files and toolpaths are available in the project repository
  • Design files: See final project documentation for CAD files